Bilocale in vendita

Parma, Via Alberto Sordi
€ 195.000
Prezzo aggiornato
2 locali 2 locali
59 Mq 59 Mq
1 bagno 1 bagno

Bilocale in vendita

Parma, Via Alberto Sordi

Descrizione annuncio

VERDI LIVING: nel cuore della vivace zona Campus di Parma nasce un progetto abitativo moderno composto da due eleganti palazzine, unite da un ambiente comune dedicato a fitness e benessere .
Un intervento che coniuga architettura moderna, massima cura dei dettagli e tecnologie avanzate, per un modo di abitare che guarda al futuro.

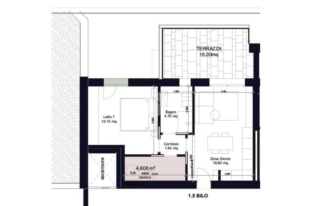
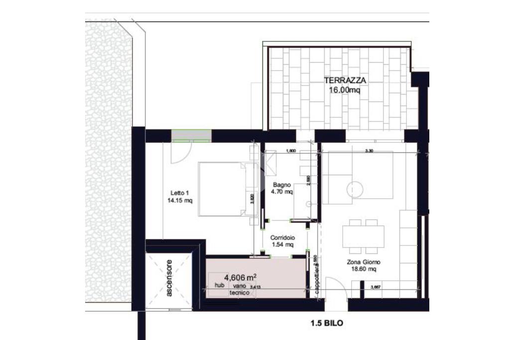
Proponiamo un bilocale di nuova costruzione, progettato per garantire il massimo efficientamento energetico, si estende su 60 mq e offre un'ampia loggia, ideale per momenti di relax all'aperto.
Gli spazi interni comprendono una camera da letto, un soggiorno versatile, e un bagno ben rifinito. L'ascensore e l'aria condizionata aggiungono comfort e praticità alla vita quotidiana. L'area comune tra le palazzine offre un ulteriore spazio di socializzazione e svago.

CARATTERISTICHE DEL PROGETTO VERDI LIVING:
Il nuovo complesso è strutturato su due edifici di 4 piani fuori terra più piano interrato
Autorimesse e cantine collegate direttamente agli ascensori.
Posti auto coperti e scoperti.
Ampie aree verdi condominiali progettate con attenzione.
Ingresso elegante con percorsi illuminati, videocitofono e spazio comune di accoglienza.
Un contesto che esprime ordine, cura e un’immediata sensazione di casa di livello superiore.

In ogni palazzina troverai:
2 bilocali e 2 trilocali per piano dal terra al terzo
2 prestigiosi attici quadrilocali al piano superiore
Piani terra con grandi giardini privati
Piani intermedi con terrazze ampie e fioriere integrate
Gli ambienti sono studiati per garantire luce naturale, privacy e completo comfort abitativo.

Il tuo futuro è già dentro casa:
- Classe energetica A4 NZEB
- Edificio 100% no gas
- Sistema di riscaldamento e raffrescamento canalizzato
- VMC – Ventilazione Meccanica Controllata
- Impianto fotovoltaico da 3 kW con batteria da 5 kW per ogni unità
- Oscuranti, tapparelle e frangisole motorizzati
- Infissi in PVC con vetrocamera e grandi scorrevoli di qualità
- Predisposizione allarme
- Ascensori moderni e silenziosi

FINITURE – Materiali selezionati, estetica curata:
- Pavimenti in gres porcellanato
- Terrazze rifinite con gres antiscivolo
- Sanitari Ideal Standard e rubinetteria Grohe
- Portoncini blindati e porte interne di design
- Ampia scelta di finiture personalizzabili

CONSEGNA: 2027
La posizione strategica, a pochi passi dal Campus universitario, rende questa soluzione abitativa ideale per chi cerca un ambiente tranquillo ma ben collegato ai principali servizi e attività della città.

VI ASPETTIAMO PER LE PRENOTAZIONI
LISA 3663015604

Mostra tutto

Nelle vicinanze

Trasporto pubblico Trasporto pubblico
viale delle Scienze "Conad"
viale delle Scienze "Conad"
540 m
Trasporto pubblico
540 m
Ricariche auto elettriche Ricariche auto elettriche
Campus Parma | EnelX
590 m
Scuole Scuole
Scuola per l'Europa Parma
320 m
Scuole
960 m
Università di Parma - Campus
1,0 Km
Istituto De La Salle
1,0 Km
Scuola Primaria "Martiri di Cefalonia"
1,9 Km
Farmacia Farmacia
Farmacia Ponte Dattaro
2,2 Km
Farmacia Eurosia
2,4 Km
Farmacia Amadasi
3,0 Km
Ospedali Ospedali
Casa di Cura Città di Parma
2,9 Km
Piccole Figlie Hospital
3,0 Km
Supermercati Supermercati
Famila Superstore
210 m
Conad Campus
620 m
Eurospin
1,2 Km
IN's
1,9 Km
Coop
2,1 Km
Negozi Negozi
Negozi
2,4 Km
Tognoni
2,4 Km
Il pane di Luciano
3,0 Km
Gelateria
3,0 Km
Bar Bar
Metropolis
480 m
Bar
570 m
Campus Industry Music
620 m
Ramon
2,3 Km
Bar Campioni
2,6 Km
Ristoranti Ristoranti
Ristorante Giapponese Sushiko
220 m
100Montaditos Parma Campus
240 m
Old Wild West
470 m
La Meta
610 m
Parmarotta
1,0 Km
Mostra tutto

Caratteristiche

Rif.:
61149478
Piano:
1 di 4 con ascensore (Piano medio)
Terrazzi:
1
Camere da letto:
1
Arredamento:
Assente
Condizionamento:
Autonomo
Mostra tutto
Prezzo Prezzo
€ 195.000
Prezzo box Prezzo box
€ 22.000
Rata mutuo Rata mutuo
€ 920 / mese
Spese annue Spese annue
€ 0
Proponi il tuo prezzoProponi il tuo prezzo

Classe Energetica

A4
A4
A4
A4
A4
A4
A4
A4
A4
EP globale non rinnovabile:
2.00 kW h/m² anno
EP globale rinnovabile:
2.00 kW h/m² anno
EP invernale del fabbricato:
EP estiva del fabbricato:
Anno di costruzione:
2026
Riscaldamento:
Autonomo
Tipo impianto:
Ad aria
Tipo alimentazione:
Pannelli

Prezzo ridotto di €1 (8%%)

Ti interessa visionare l'immobile?

Fissa un appuntamento  Fissa un appuntamento

Richiedi informazioni

Clicca su Leggi per aprire l'informativa
* Questi campi sono obbligatori

Calcola il tuo mutuo

Semplice e senza impegno
Anticipo

( % )
Mutuo

( % )

pochi semplici passi

inserisci i tuoi dati
Questionario completato
Grazie per aver richiesto un appuntamento senza impegno con un nostro Consulente del Credito e Assicurativo.

Hai inserito correttamente tutti i dati necessari e a breve riceverai una e-mail con un link da convalidare per inviare i tuoi dati.
Affiliato
Il Trovatore Immobiliare Srl
St.da Montanara, 29/d 43124 Parma (PR)

Il nostro staff


  • Alessandro Bartolini
    Affiliato

  • Lisa Bartolini
    Affiliata

  • Eleonora Bellomi
    Coordinatrice

  • Massimo Benassi
    Collaboratore

  • Milena Bartolini
    Collaboratrice

  • Cristina Stefu
    Collaboratrice
St.da Montanara, 29/d 43124 Parma (PR)
Zona: Q.RE Montanara - Centro Contabile - Campus
Mostra su mappa
Affiliato
Il Trovatore Immobiliare Srl
St.da Montanara, 29/d 43124 Parma (PR)

2025 Tecnocasa Franchising S.p.A. - P. IVA 08365160152 - Via Monte Bianco 60/A 20089 Rozzano (MI). Ogni agenzia ha un proprio titolare ed è autonoma. Privacy policy | Policy utilizzo | Cookie policy